Categoría: Administración y Gobierno Interior
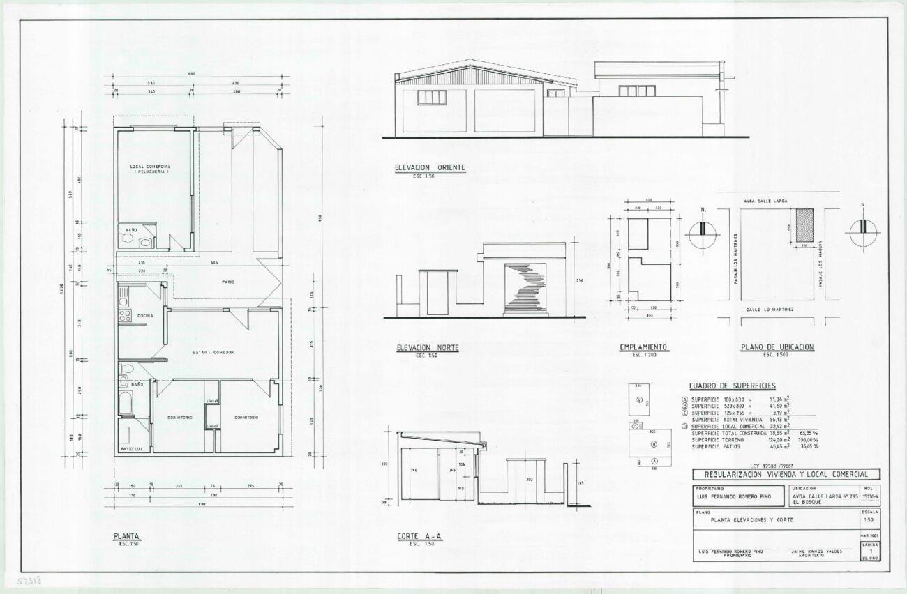
Vivienda y Local Comercial de El Bosque Regularización

Vivienda y Local Comercial de El Bosque Regularización

  • n° Identificación: 85252
  • Año: 2001
  • Sector: Administración y Gobierno Interior
  • Tipo de edificación: Vivienda
  • Especialidad: Arquitectura
  • Región: Metropolitana Santiago
  • Comuna: El Bosque
Ver Original